КД - 98

5000000,00
р.

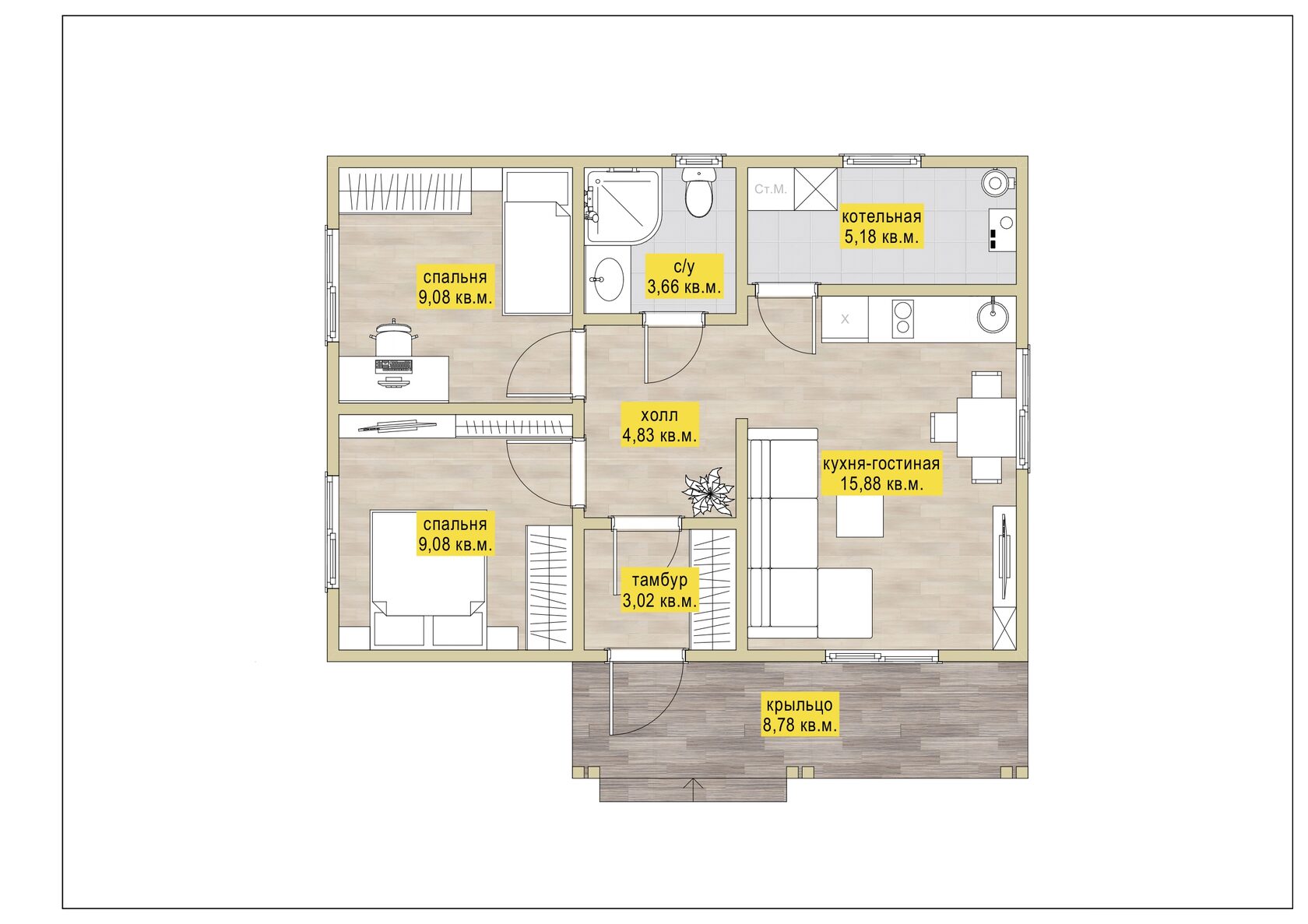
Площадь (м²): 60

Этаж: 1-этажные

Спальня: 2

Категория площади: До 150 м²

Гараж: Без гаража

Санузел: 1

Эскроу-счет: Да

Семейная ипотека: Да

ПЛАНИРОВКА
УСЛВОИЯ КРЕДИТОВАНИЯ

ПЛАНИРОВКА

УСЛВОИЯ КРЕДИТОВАНИЯ

Построим дом по программе «Семейная ипотека» со ставкой 6% | Работаем с эскроу-счетами.
Являемся аккредитованными подрядчиками в следующих банках:
— ПАО «Сбербанк»
— АО «Альфа-банк»
— ПАО ВТБ банк
— АО «Газпромбанк»
— ПАО «Примсоцбанк»
— АО «Омская региональная ипотечная корпорация»
Made on
Tilda